YMCA Twigs

The Cheyenne River Reservation is about the size of Connecticut, but has an average population of 2 people per square mile. The Reservation is centered around the cities of Eagle Butte and Dupree located 20 minutes apart along U.S. Route 212, the main paved road running through the Reservation. The other communities are dispersed across the Reservation mostly accessible by gravel roads. There is a transportation access burden throughout the Reservation with people traveling long distances to meet basic needs.

Today, these outlying communities are isolated, and many are upwards for 40 miles away from basic necessities such as gas and food, and most have no place to gather on a good day or when there is an extreme weather event. The YMCA has commissioned the design of several ‘Twigs’ for these rural communities which will provide family stability on a daily basis and resilience in times of disaster.

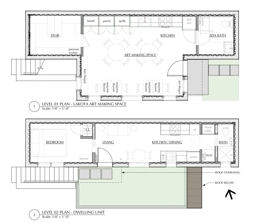
The program for the Twigs was generated through community engagement. The first twig will be a Lakota Art Making Space with a staff apartment above and will be constructed from two repurposed 40′ long shipping containers and one 20′ container.

The Twigs are designed to passive house standards to reduce energy consumption and make the building less vulnerable to the prairie’s temperature extremes.

There are five schools on the Reservation in Eagle Butte, Dupree, Takini, LaPlant, and Timber Lake. School and afterschool attendance is inconsistent. For a variety of reasons, many children don’t attend the school closest to them, for example, some children in Bridger attend the Dupree School which is over an hour away from home. Because of the travel time it takes to get to school, children may have difficulty participating in afterschool activities or they might miss school altogether because the bus leaves town at 6:00 a.m.—a hard time for children and family to be up and out in the morning.

Despite these hurdles, the culture remains strong with Lakota language being taught in schools supported by the community’s strong tradition of crafts, music, cooking and spirituality. The programs for the first four Twigs will be a Lakota Art Making Space, a Lakota Cooking Classroom, a STEM Lab and a recreation center. The four Twigs will support Cheyenne River’s rural communities, which at times can be cut off from services.